做建筑的老和尚 拆除两层联排住宅后,新建单层花园式住宅,生活空间生机勃勃

文章图片

文章图片

文章图片

文章图片

文章图片

文章图片

文章图片

文章图片

文章图片

文章图片

文章图片

文章图片

文章图片

文章图片

文章图片

文章图片

文章图片

建筑外观
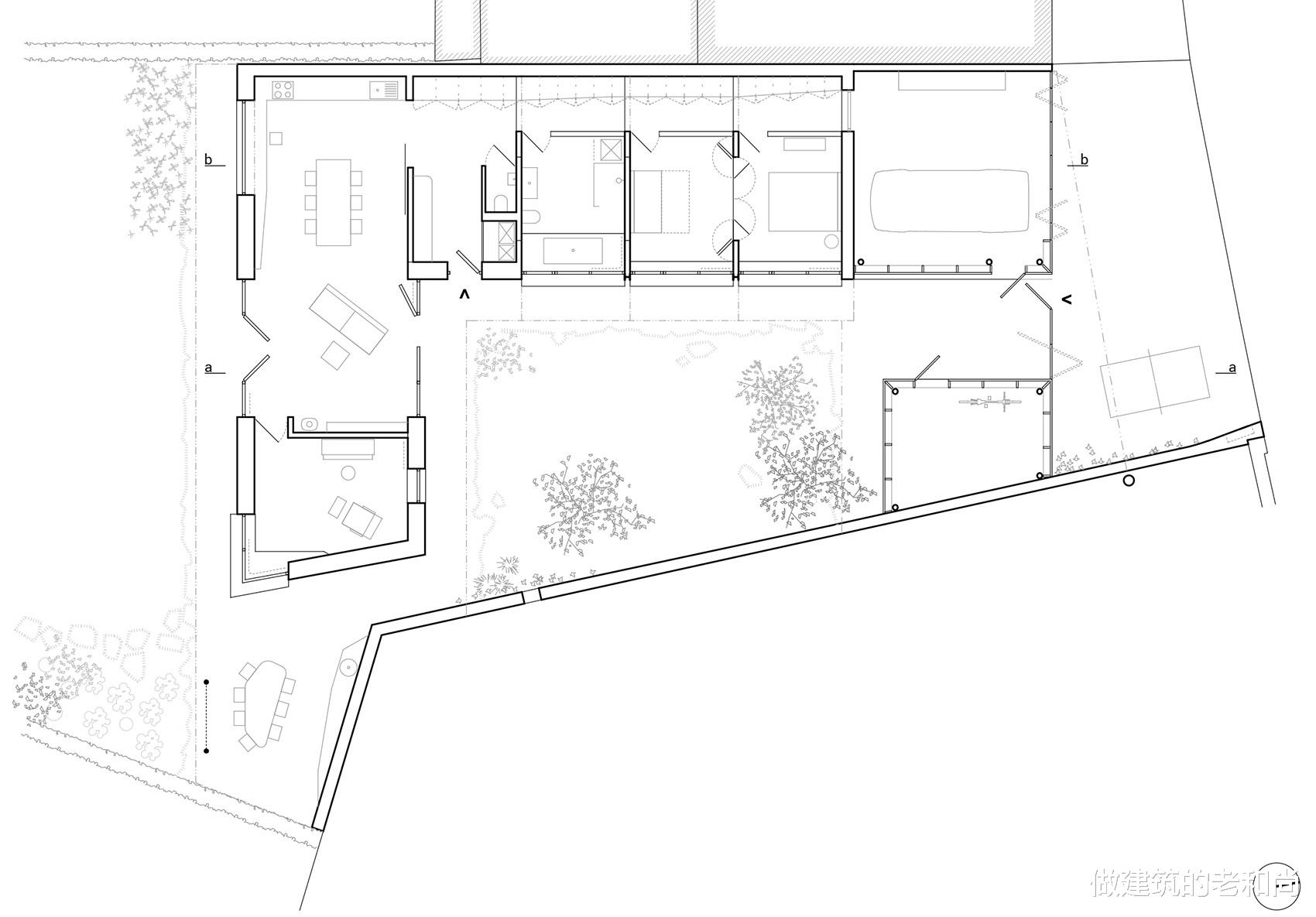
该项目位于捷克兰什克龙的居住区 , 场地内原本是一栋双层联排住宅 , 被拆除后新建了现在这栋单层住宅 , 这源于业主想要与大自然更多亲密的接触 。 从这一点来看 , 业主明显早已脱离了需要将空间全部设计成满足功能性空间的基础需求 , 从人对于建筑的需求来说 , 空间的品质已经被上升到了更重要的位置 。
经验总结扩展阅读
- 女神“宽胯”的鲨鱼裤美女,擅长打造优雅靓丽风,魅力无穷
- 人性潜规则:你的价值,决定着你在别人心里的位置
- 梦里的人,不会因为梦的荒诞,从而察觉是梦
- 计划真为难江疏影了,跟84斤的佟丽娅同框,腰勒的衣服全是褶子
- 氧化人到多少岁开始有老年斑?可能和你想的不一样,早知早好
- 人生的意义,就是接纳生活的所有,在生活中改变自己
- 厉害的人,都在培养自己这几种能力,希望你也有
- 女人,永远不要羡慕别人的生活
- 下巴伊人小课堂 | 护肤:人人都有的“面霜”,怎么用才有效?
- 中国最有名的3座名山,你都去打卡了吗?有生之年建议都去一趟
