翔说家居|39㎡的小型住宅,洋溢着浓浓的个性气息,温馨舒适,让人羡慕

文章图片

文章图片

文章图片

文章图片

文章图片

文章图片

文章图片

文章图片

追求个性是每个人的权利 , 更是对于生活的一种态度 , 在装修行业中 , 想要表现出个性有一定的难度 , 首先要从根源入手 , 找到对应的装修风格 , 像是本次介绍的案例 , 装修的风格倾向于现代简约风 , 但是整体格调又有浓浓的质感 , 十分不错 。
不到四十平方米的面积确实不是很大 , 尤其是想有一定的风格和格调 , 就更加困难了 , 这需要整体房间的细心规划 , 甚至风格元素都要兼具实用性 , 才能在小的空间有所展开 。
本期我们将要看到一户39平方米的小住宅 , 小型住宅近些年是很流行的 , 虽然面积不是很大 , 但是实用性和美观性都是有的 , 我们一起看一下 , 喜欢的朋友记得帮小编转发点赞哦 。
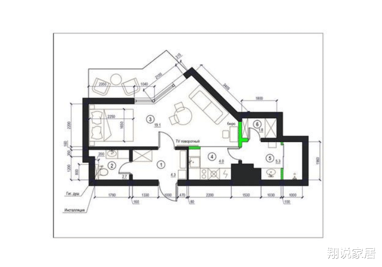
户型图如下:
从户型图中能够看出 , 整体的房间格局并不是很规则 , 稍有些许的梯形 , 这对装修难度又是一次提升 , 但是看到整体的布局还是不错的 , 不规则的区域多数分给了客厅 , 客厅的规则与否并不影响整体的感觉 , 反而会增添些许的个性 , 这样的设计很巧妙 。
玄关
玄关的位置相对来说还是很宽敞的 , 用一道窗帘分割 , 起到了空间隔离的作用 , 玄关处还放置了一个小座椅 , 方便主人日常的换鞋等操作 。 淡蓝色墙壁清新优雅 , 在洁白的灯光映射之下更是温馨 , 地板的颜色和客厅区域进行了划分 , 不仅方便了日常的打理 , 也增加了空间的层次感 。
墙角区域也没有浪费 , 安放了一个双层的mini玄关桌 , 桌上放置了一个小摆饰 , 增添了玄关区域的个性与质感 。
厨房
夹角处的厨房面积并不是很宽敞 , 但是实用性很强 , 墙壁砖选择的乳白色+黑缝的款式 , 不仅别致有个性 , 还方便了后期的打理 。 L型的厨房设计也增加了整体的空间利用率 , 完美切合角落的墙壁 , 一厘米的空间都不会浪费 。
深绿色的橱柜清新也洁净 , 赋予了狭小的空间丝丝生机感 , 主人的小猫坐在橱柜上看着镜头 , 还真是可爱 。
客厅
在各个区域的连接处 , 就是客厅的位置 , 客厅的位置并不是很宽敞 , 而且布局也不是很规整 , 但是好在整洁明亮 , 给人较为舒适的感受 。
悬挂式的电视在墙壁的上方 , 下方位置则安排放置了一个电视柜 , 电视柜造型十分别致 , 颇有几分钢琴的样子 , 个性十足 。
经验总结扩展阅读
- 致我们人生中,那些说散就散的人
- 人群染发对身体有伤害吗?不妨直说:这几类人群可能不适合染发
- 阿富汗与不同国家商业体系
- 生活听语兮:大声说爱你,喜欢就大胆说出来
- 真正的友情,从不喧哗
- 深圳宝山技工学校│有些事,说出来,那都不是事!
- 直发 为什么说直发是纯欲天花板?那些直发女神都有什么发型秘诀呢?
- 换一种思维,换一种人生
- 会偷三种懒,享尽一生福
- 短发 女士发型别乱来,选对目标再裁剪,都说很不赖
