大连星艺装饰|大连龙湖天琅户型解析——中叠120㎡

文章图片

文章图片

文章图片

文章图片
[大连龙湖·天琅
怀着对城市与土地的严谨解读 , 对文化、地脉、人居理念的深度洞察与把握 。 在传承中国传统建筑精粹的同时 , 也注重对现代生活价值的精雕细刻 , 表达对自然与生命的敬畏 。 今天针对中叠户型我们做一个户型解析 , 希望在装修上帮到您!
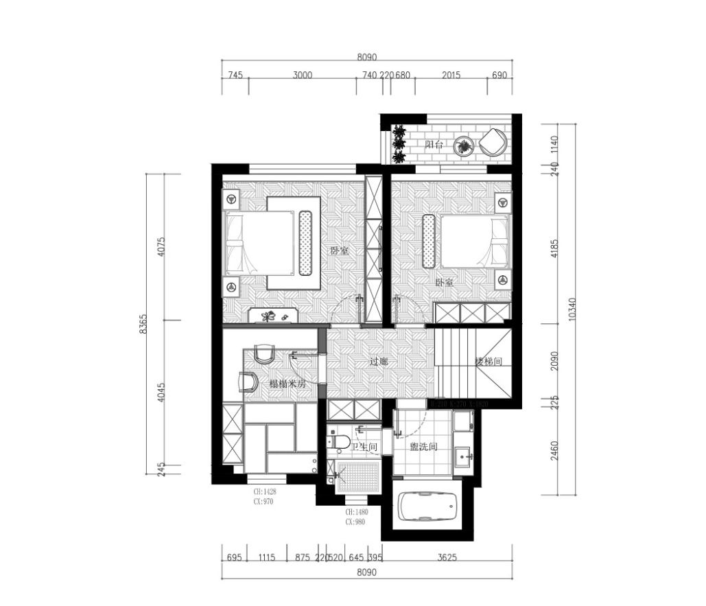
原始户型解析
1.入户门厅高挑空 , 可将空间划分至二层 。
2.三室叠墅空间 , 对于居住人口多的家庭 , 可考虑将挑空封闭增加一个卧室 。
3.楼梯位置无论功能方位还是风水上都极佳 。
4.全明户型 , 通风采光非常好 。
5.对于准5口以上的家庭厨房面积不足 。
6.两个卫生间都过小 , 洗衣空间和清扫空间是本户型的难点 。
户型设计建议
1.准对5口以上家庭 , 可以考虑将挑空封闭三室变四室 。
2.一层除公共空间外只有一个卧室 , 可考虑将卧室变成多功能房间 , 并与客厅连通 。 整体一层布局将更协调与实用 。
3.厨房可以考虑中西厨划分 。
4.扩大二楼卫生间的功能 , 加入洗衣浴缸等功能区域 。
5.中间层入户门厅独立 , 可以考虑将换鞋区归纳于门厅位置上 。
装修案例赏析
【大连星艺装饰|大连龙湖天琅户型解析——中叠120㎡】以上就是龙湖天朗的中叠户型解析和案例 , 如果您家也是叠拼可以多关注小编哦!
经验总结扩展阅读
- 公众面前 苏提达真大气,接待总理用钻石装饰发型,有钱就是任性!
- |2名天津返回大连人员核酸检测阳性,系大学生朋友
- 空难 大连5.7空难,112人遇难,一位乘客买了7份意外险,被锁定为嫌犯
- 大连交通大学|大连交通大学一男生校内多次扇女友耳光!校方通报:将严肃处理
- 方法门店销售经验:做大连单,这些话说了吗?(实用收藏版)
- 底线很少见的刺绣花样,用来装饰非常美,附3种花朵实例针法!收藏
- 师古创今装饰工程 中式红木装修,中式装修的典范
- 幸福金芒果装饰 滇池卫城500m2法式轻奢风格丨法式大宅里的高级私人轻奢物语
- 合肥艾美加装饰 了解装修材料,少走弯路,你必须知道防腐木的优缺点。
- 常州别墅设计师 品清别墅装饰|现代轻奢风格案例赏析
