【无锡龙塘岸后五巷B块保障房户型 无锡龙塘岸后五巷房价】龙塘岸后五巷B块项目
总建筑面积约19万平方米,规划建设住房1727套 。
户型
80平方米左右的两居室为主、少量配置90平方米左右的三居室,以满足住房保障家庭的不同需要 。
户型设计上做到了卧室朝南、起居室及厨卫等区域充分满足通风采光要求 。
预计在2023年6月交付使用 。
龙塘岸后五巷B块拟建8栋24-26层住宅,户型图(点击看大图)
1#-7#楼户型如下

文章插图

文章插图

文章插图

文章插图

文章插图

文章插图
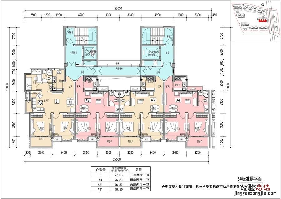
8#楼户型如下

文章插图

文章插图

文章插图

文章插图

文章插图

文章插图
经验总结扩展阅读
-
-
-
辉辉影视观看 治疗勃起功能新药阿伐那非片上市啦!分析下他的优势!
-
用排水法收集氧气验满的方法是,排水法收集气体时何时开始收集,何时证明收集满了?向上排空气法收集气体时如何验满
-
-
-
大豆磷脂软胶囊作用,大豆磷脂胶囊的作用有哪些呢?吃哪种好?
-
婚后拿钱给弟弟买婚房,老公知道后提离婚,回到娘家,我后悔大哭
-
-
-
-
紫薯 董洁素颜不输当年,和12岁儿子像姐弟,大方分享的“护肤法”,因便宜被低估
-
-
2023年2月21日定亲吉日一览表 2023年2月21日是定亲吉日吗
-
手表很久没带不走了怎么办,机械表一年没带不走了怎么办
-
-
舒山有鹿|这4句话,当你读懂的那一天,证明你已然老去了
-
-
-