小拾谈装修 她家称为“神设计”都不为过!55㎡,住6口人,还有超多储物

文章图片

文章图片

文章图片

文章图片

文章图片

文章图片

文章图片

文章图片

文章图片

文章图片

文章图片

文章图片

55㎡的户型 , 住6口人 , 还有超多储物空间 , 相信很多人看到 , 都会认为不太可能 。 毕竟户型面积实在是太小了 , 根本无法满足这么多人的居住需求 。 然而在空间设计中 , 小户型虽有很多局限性 , 但若能做到合理的设计 , 也没什么不可能的 。
本期就来分析一下这套被称为“神设计”的小户型案例 , 虽说在整个方案设计中 , 经历了N多次方案变动 , 但好在结果是好的 , 屋主也十分满意 。
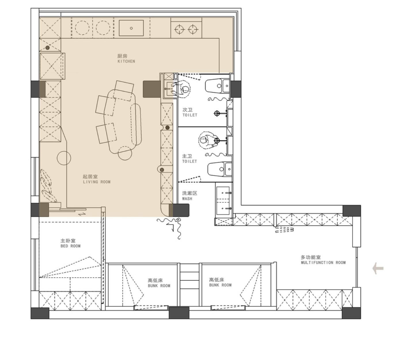
平面结构图
坐标广州 , 原户型是一套老房 , 面积55㎡ , 常住人口有六位 , 分别是屋主夫妇、儿子和女儿、以及双方的母亲 。 虽说户型面积不大 , 但由于屋主一家至少要在这居住10年以上 , 所以要求也比较多 , 具体如下 。
1、首先需要解决家里六口人的居住需求 。
2、家里的书籍和玩具比较多 , 需要大量的储物空间 。
3、女主和女儿都需要一块活动区 , 方便瑜伽、舞蹈 。
4、比较注重空间的氛围 , 希望为两个孩子打造出一个宽敞、有趣的成长空间 。
平面方案图
结合屋主需求以及现有的空间结构 , 布局改造如下 。
1、卧室阳台与旁边的厨房打通 , 并以环绕式来布局 , 融合厨房、家政功能 。
2、客厅以功能区定位 , 让全家有一块互动交流区 。
3、卫生间向厨房扩大 , 并采用双卫来设计 , 最大化提高生活的便捷性 。
4、所有的睡眠区都设计在过道处 , 让空间面积分配更加合理 。
玄关【小拾谈装修 她家称为“神设计”都不为过!55㎡,住6口人,还有超多储物】
当空间重新规划后 , 入户不仅仅是形成了一个玄关区 , 更多的则是以功能区存在的 。 比如超宽敞的活动区 , 就满足了屋主瑜伽 , 以及女儿跳舞的需求 。
经验总结扩展阅读
- 什么家有柯基:柯基幼犬可以吃什么 小柯基吃什么又营养又健康?
- 下巴伊人小课堂 | 护肤:人人都有的“面霜”,怎么用才有效?
- 小美女子做全麻隆鼻,术后2天竟发现当时已怀孕,术前检查却毫无征兆
- 《开端》众生皆苦!除了小人物让人破防,还隐藏着什么样的思考?
- 母猫人会出现难产,猫也会,当你的猫遇上难产的问题时保大还是保小呢
- 悲痛!代驾小哥惨遭门砸死,生命最后6小时,他有多绝望?
- 本文转自:晋州普法如果人在7到15天之内连续不睡觉 河南一女子40年没睡过觉,专家监控48小时之后,终于揭开真相
- 怀念小时候过春节,真好!
- 倪虹洁|43岁倪虹洁自曝感情经历,结过婚,生过娃,热恋男友比她小
- 雀斑「斑后」关于长斑你了解多少?吐血整理知识点必须要记住!
