装好宅|热爱跳舞的女主人,家里也加入舞蹈元素,以获得独特的居住体验

文章图片

文章图片

文章图片

文章图片

文章图片

文章图片
今天房屋的女主人是一个很喜欢跳舞的宝妈 , 男主人是一个外贸公司的经理平时的工作比较忙 , 女主人在结婚之后就辞去了工作想要自己创业 , 女主人的时间也比较自由一些 , 所以家里装修的时候都是女主人在和设计师沟通 。 女主人说自己从小就很喜欢跳舞 , 虽然没有选择舞蹈专业但这么多年也是一直没有间断地在学习跳舞 , 这次创业也是打算办一个和舞蹈瑜伽有关的工作室 , 找专业的老师来授课 , 自己在经营工作室的同时也可以继续学习自己的喜好 , 所以在装修新房的时候 , 设计师也加入了一些舞蹈元素 , 让业主获得独特的居住体验 。
热爱跳舞的女主人 , 家里也加入舞蹈元素 , 以获得独特的居住体验
房屋户型:复式
房屋面积:200平方米
装修预算:50万元以上
所在城市:温州
设计师:王文文
主要建材:木作、油漆、木地板、玻璃、石材、壁纸
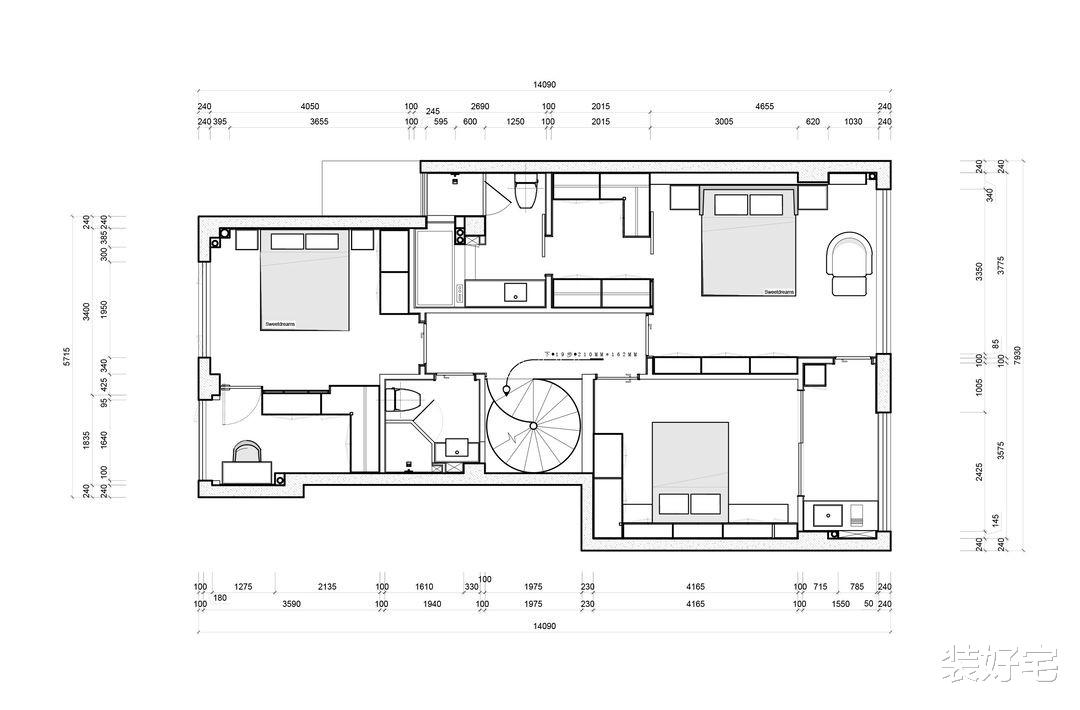
【户型图】
这个房屋是复式的结构 , 男女主人都比较喜欢简约风的设计 , 但也希望家里可以有一些独特的元素 。 所以在装修的时候设计师对家里的一些地方做出了调整和改动 , 在简约风格的基础上添加了一些带有艺术感的设计 , 把家里的楼梯换成了带有弧度的设计 , 就像是跳舞的动作一样连贯优美 。
【客厅】
设计重点:白色作为主色调
男女主人都喜欢简单的设计 , 所以家里装修的时候选择了简单的黑白配色 , 为了担心大面积的黑色会影响房屋的采光 , 选择了白色作为客厅的主色调 , 从墙壁到屋顶都是干净的白色 , 另外加入了实木和黑色的元素 , 让客厅空间不会过于单调 。
实木的地板让客厅空间多了一些温暖的感觉 , 搭配上电子的壁炉 , 整个客厅空间就多了很多温暖的气息 , 多了一些家的感觉 。
客厅靠近阳台的区域设计了一个阅读区 , 精心养护的绿植加上随意摆放的书籍 , 营造了一个静谧带有文化气息的阅读区域 。
【楼梯】
设计重点:螺旋楼梯
复式的房屋最重要的就是家里的楼梯了 , 简单常见的楼梯会让人觉得很单调 , 过于沉稳的颜色也会影响家里的视线和采光 , 所以装修的时候选择了更有创意感的楼梯设计 。
白色螺旋状的楼梯 , 弧度自然流畅 , 就像是翩翩起舞的女子一样在舞动着自己的身体 , 圆润的边角过渡让空间更为舒畅 , 这也是女主人的舞蹈带给设计师的灵感 。
【卧室】
设计重点:阳台阅读区
卧室的阳台位置设计了一个阅读区 , 平时两个人都比较喜欢读书放松自己 , 小小的阅读区域也增添了家里的文艺气息 , 可以体现业主的品位 。
【装好宅|热爱跳舞的女主人,家里也加入舞蹈元素,以获得独特的居住体验】
经验总结扩展阅读
- 国内最大私人豪 宅!比故宫大10万平方米,被称为“中国民间故宫”
- 玉集这几支气质滋润口红推荐给热爱红唇的你,红唇控绝对不能错过啊
- 北京独居大爷曝 光1300平住宅后,我才明白有钱从来就不等于富有
- 白景琦|《大宅门》:漫谈白景琦娶香秀为太太的背后—白家权力悄然交接
- 保持热爱,享受浪漫,人间自有鲜花救赎
- |杨受成孙女庆生礼物摆满豪宅,准儿媳张罗拍照,生娃两年仍未结婚
- |刘嘉玲被曝将出售上海三层复式豪宅,叫价1.8亿,自带花园游泳池
- 成膜教你宅在家里如何养出好皮肤
- 秋天|在奔向美好的路上,热爱着自己努力的样子
- 杨九红|大宅门:同样母女分离,把大格格和杨九红对比一下,差距就出来了
