家居超人|四室改两室,对空间格局进行爆改,诠释小两口新的生活方式

文章图片

文章图片

文章图片

文章图片

文章图片

文章图片
这个房屋是一对小夫妻的新家 , 男主人是一个摄影工作者平时主要为新婚夫妻拍摄婚纱照 , 女主人则是一个婚礼策划师 , 可以说两个人的工作都是很浪漫的 , 平时休息的时候两个人也喜欢一起出去旅行 , 作为摄影师的男主人就承担起了拿着摄像机记录美好瞬间的作用 , 两个人家里的相册也是有很多照片了 , 生活中的美好瞬间都被记录了下来 。 之前两个人一直是租房子住 , 这次装修新家对于他们来说也很重要 , 这既是他们的第一个房子也是他们的婚房和家 , 设计师对这个房子也是很用心 。
四室改两室 , 对空间格局进行爆改 , 诠释小两口新的生活方式
房屋户型:两室
房屋面积:130平方米
装修预算:30到50万元
所在城市:成都
设计师:温稳稳
主要建材:铁件、石材、玻璃、木皮、壁纸、茶镜、烤漆
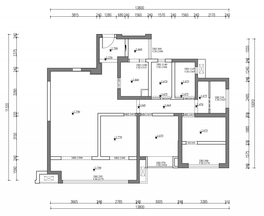
【户型图】
这个房屋原始的格局是一个四室的户型 , 130平方米的空间分成四个卧室每个空间都不是很大 , 家里现在就只有两个人居住以后也不会用到那么多的卧室 , 所以装修的时候也对家里的格局做出了调整和改动 , 通过改变部分空间设计了开放式的书房和衣帽间 , 对空间格局进行爆改 , 诠释小两口新的生活方式 。
【玄关】
设计重点:实木护墙板
入户的玄关位置设计了实木的护墙板 , 本来入户的区域比较小 , 打通空间之后整个空间就变得开朗了很多 , 让人感觉很舒畅 , 不会有之前压抑的感觉了 。
【厨房】
设计重点:白色为主调
厨房的空间没有太大的窗户 , 所处的位置采光也不是很好 , 不过装修之前就已经预留好了下水管道 , 也不能更改厨房的位置 , 所以厨房装修的时候就选择了白色作为主调 , 通过简约大方的白色来提升厨房的光线 。
【餐厅】
设计重点:餐边储物柜
餐厅的位置依靠墙壁设计了一整排的储物柜增加了家里的收纳空间 , 实木没有把手的储物柜和家里的墙壁融为一体 , 也不会影响整体的美观性 。
【客厅】
设计重点:增加采光面
客厅将原本不太会用到的一个卧室打通 , 增加了客厅的采光面 , 让客厅的视野更为开阔 , 同时也扩大了家里的活动空间 。
客厅整体都是黑白灰的设计 , 简单的色彩和舒适的款式 , 打造了一个静谧放松的客厅空间 , 回到家之后就可以舒服地在家休息了 。
【卧室】
设计重点:改成套间
卧室的位置将旁边一个小卧室纳入到了空间内部 , 将原本的卧室设计成了一个带有衣帽间的套间 , 衣帽间设计了穿衣镜方便使用的同时提亮了室内的光线 。
卧室蓝色的墙壁给人一种静谧舒适的感觉 , 搭配灰色系的床铺 , 让业主可以享受一个舒适的睡眠 。
经验总结扩展阅读
- 品牌民族彩妆ZFC品牌获超人气国创IP《两不疑》授权,即将推出联名款彩妆
- 组织架构 一拳超人重制版201话:刘海大婶心态崩了 速度被压制 惨败退场
- 超人气什么精华液值得买?超人气的精华液排行榜,爱美的你不如看看吧
- 方法恒信家居中“塑料家具”
- 家居德国KLAPP套盒系列
- 发型 短发怎么烫好看?这四种超人气网红烫发,只要能中三种你就是女神
- 卷发短发怎么烫好看?这四种超人气网红烫发,只要能中三种你就是女神
- 品牌超人气淮树鱼腥草爽肤水!保湿舒缓、让你摆脱“沙漠皮”!_
- 我们都说“男女生而平等” 如何把儿子当“老公”当“超人”的男子汉,妈妈要学会独立和坚强
- 茶叶茶饮小家电受欢迎
