翔说家居|现代风格小屋温馨舒适,8w预算打造38平方米的温馨小家,真好看

文章图片

文章图片

文章图片

文章图片

文章图片

文章图片

文章图片

38平方米的面积真的很小 , 但是通过合理的装修 , 这样的小空间也能变得温馨舒适 。 本期案例房就是如此 , 虽然房间面积不大 , 但是装修得却很好 , 无论是颜色的运用还是家具的选择都十分合理 , 给人舒适安逸的感觉 。
小空间最好的装修方式就是减少隔断 , 这样的能够最大程度地放开视野 , 视野的宽阔能够提升心灵的舒适度 , 自由感也能够有所提升 , 接下来我们就一起看一下这个案例房 , 如果您家的房间面积也不是很大 , 那么您可以好好学习一下 。
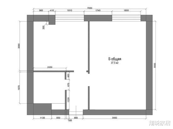
原始布局图如下:
整体房间面积是38平米 , 长方形的格局十分友好 , 能够更加方便设计师的规划和装修 。 房间的厨房和餐厅进行了融合 , 较好地规划了各个功能区域 , 使其能够舒适地完成各种任务 。
玄关
入门处的玄关以浅灰色为主题色 , 不仅时尚有内涵 , 还十分抗脏;玄关的左手侧是一个玄关镜 , 而右侧是一个衣帽间 , 衣帽间不是很大 , 所以没有设计门式隔断 , 用一道灰色布帘将与其给划分开了 , 干净利落 , 色彩也十分协调 。
客厅
简约风格的客厅典雅又时尚 , 姜黄色的窗帘作为颜色搭配 , 放大了空间的亮度 , 也让空间更加温馨 。
小小的会客桌在客厅中央 , 对面是一个悬挂式电视 , 值得注意的是电视墙 , 浅灰色的电视墙底色搭配黑色纹理 , 纵向空间得到拉伸 , 质感十足 。
木质地板纹路和木质电视柜 , 给整体空间增添了温馨自由的感觉 。
卫生间
卫生间的米白色墙壁上搭配了些许的黑色花纹 , 不仅时尚有质感 , 还十分抗脏 , 大气美观 。
值得注意的是 , 洗手台的上方还放置了一个绿植 , 颜色鲜艳 , 缓解了空间色彩的单调性 , 还为卫生间区域增加了许多的生机 。
虽然房间不大 , 但是卫生间依旧安排了浴缸!可见主人真是个懂生活的人 , 小编也是建议大家:如果您家空间足够 , 并且不在乎这点小钱 , 可以入手一个浴缸 , 真的不会让你后悔 , 设想工作一天 , 回到家中安安稳稳地躺在浴缸中 , 放放松 , 听听音乐 , 这是多么享受的一件事情呀!
【翔说家居|现代风格小屋温馨舒适,8w预算打造38平方米的温馨小家,真好看】厨房
小L型的厨房布局 , 最大程度贴合了房屋的空间 , 减少了空间压力 , 同时主人日常的使用也不会拥挤 。 灰色的颜色选择抗脏有质感 , 搭配墙壁上的艺术造型时钟 , 十分别致 。
经验总结扩展阅读
- 致我们人生中,那些说散就散的人
- 人群染发对身体有伤害吗?不妨直说:这几类人群可能不适合染发
- 阿富汗与不同国家商业体系
- 生活听语兮:大声说爱你,喜欢就大胆说出来
- 真正的友情,从不喧哗
- 深圳宝山技工学校│有些事,说出来,那都不是事!
- 直发 为什么说直发是纯欲天花板?那些直发女神都有什么发型秘诀呢?
- 换一种思维,换一种人生
- 会偷三种懒,享尽一生福
- 短发 女士发型别乱来,选对目标再裁剪,都说很不赖
