家居超人|一梯一户的复式楼房,清雅高洁带有中式魅力,打造别样的中式美居

文章图片

文章图片

文章图片

文章图片

文章图片

文章图片

中式设计对于我们来说就像是一个传统一样 , 就算不能总是看见却也可以让我们印象深刻 , 新中式的装修设计也是结合了中式和现代的元素 , 在传统的基础上做出改造和创新 , 让传统的中式风格也变得更符合年轻人的审美和喜好 , 现在喜欢新中式的群体也越来越多 , 属于传统的经典元素也不会过时 。 今天和大家分享的这个房屋就是元素了新中式的装修设计 , 这是一个一梯一户的复式楼房 , 整个设计风格清雅又高洁还带有中式的魅力 , 打造了一个别样的中式美居 。
一梯一户的复式楼房 , 清雅高洁带有中式魅力 , 打造别样的中式美居
房屋户型:复式
房屋面积:254平方米
装修预算:50万元以上
所在城市:深圳
设计师:王安安
主要建材:清水模涂料、铁件、实木皮、系统柜
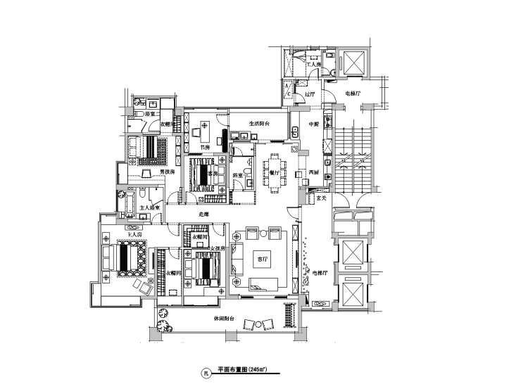
【户型图】
这是一个一梯一户的户型 , 打开电梯就是家里的玄关 , 这样的户型也可以更好的保护业主的隐私和安全 , 非常适合一家人居住 , 房屋内部的每一个空间都很方正规整 , 装修的时候也不需要做出太多的调整 。 房屋选择了清雅的新中式装修风格 , 在满足日常生活需求的同时也兼顾了中式的独特魅力 , 打造了一个别样的中式家居空间 。
【玄关】
设计重点:入户独立玄关空间
这个房屋是一梯一户的户型 , 打开电梯之后就是自己家的玄关区域 , 玄关和家里的客厅等房间之间还有一个房门 , 可以更好的保护家里人的隐私方便日常的起居生活 , 玄关区域设计了鞋柜和换鞋凳 , 在墙壁上还搭配了一个金属的装饰画 , 小迎客松的设计也彰显了业主的生活态度 。
【客厅】
【家居超人|一梯一户的复式楼房,清雅高洁带有中式魅力,打造别样的中式美居】设计重点:竹叶和水墨元素
家里选择了新中式的装修风格 , 竹子和水墨元素是最能代表中式传统魅力的元素 , 家里在装修的时候也是选择了竹叶的元素 , 竹子一直是高风亮节的事物 , 将竹叶元素点缀到客厅的沙发背景墙上也可以彰显出主人高贵典雅的气质 。
客厅的沙发、茶几和电视柜都是实木的设计 , 客厅的电视背景墙选择了带有水墨元素的大理石背景 , 在装饰空间的同时也增强了房间的亮度 。 屋顶四周的射灯也让空间更为亮丽 。
【厨房】
设计重点:中西厨兼顾
家里的厨房既满足了日常制作中餐的需求 , 也满足了女主人制作甜品的喜好和需求 , 将中西厨兼顾在一起方便日常的用餐需求 。
经验总结扩展阅读
- 品牌民族彩妆ZFC品牌获超人气国创IP《两不疑》授权,即将推出联名款彩妆
- 组织架构 一拳超人重制版201话:刘海大婶心态崩了 速度被压制 惨败退场
- 超人气什么精华液值得买?超人气的精华液排行榜,爱美的你不如看看吧
- 方法恒信家居中“塑料家具”
- 家居德国KLAPP套盒系列
- 发型 短发怎么烫好看?这四种超人气网红烫发,只要能中三种你就是女神
- 卷发短发怎么烫好看?这四种超人气网红烫发,只要能中三种你就是女神
- 品牌超人气淮树鱼腥草爽肤水!保湿舒缓、让你摆脱“沙漠皮”!_
- 我们都说“男女生而平等” 如何把儿子当“老公”当“超人”的男子汉,妈妈要学会独立和坚强
- 茶叶茶饮小家电受欢迎
