装修坊|24平单身小公寓,功能齐全还有休闲阳台,小房子也要优雅的生活

文章图片

文章图片

文章图片

文章图片

文章图片

文章图片
这个房屋是一个使用面积只有24平方米的单身小公寓 , 房屋的业主是一个自己在异地打拼的女生 , 女主人在毕业之后就留到了自己喜欢的城市工作生活 , 开始一直是在租住这个房子 , 后来房屋的主人偶然间提到想要卖掉这个房子 , 开始业主还在想房东卖掉房子之后自己要搬到哪里 , 后来父母说要不直接买了这个小房子吧 , 业主和父母商量之后也是觉得买了这个小房子也可以 , 自己的工资也可以承担这个小房子的贷款 , 这样自己在异地也有了一个属于自己的小家 。
24平单身小公寓 , 功能齐全还有休闲阳台 , 小房子也要优雅的生活
房屋户型:一室
房屋面积:24平方米
装修预算:5到10万元
所在城市:苏州
设计师:李成文
主要建材:美耐板、乐土、油漆、黄铜、塑胶地板、皮革
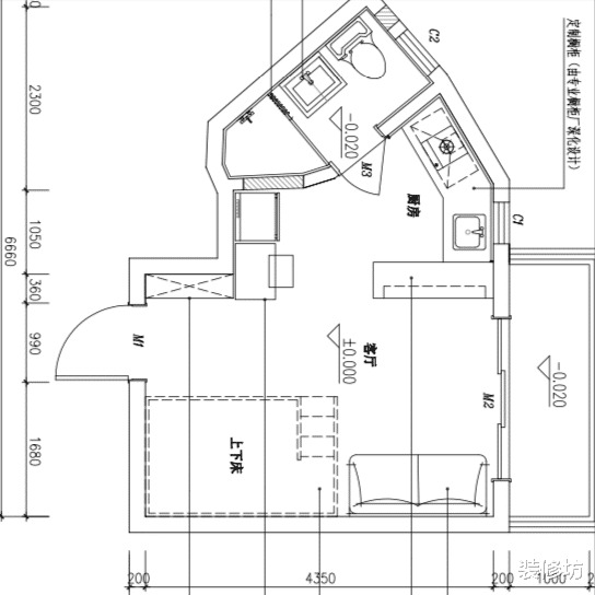
【户型图】
买了这个房子之后业主也觉得应该好好地设计一下 , 毕竟这也算是自己在异地的一个小家了 , 自己住得舒服一些也是很重要 。 设计师在研究了房屋的户型之后也做出了一些调整和改动 , 打掉了厨房和客厅之间的隔断 , 增加了家里的储物空间 , 另外将阳台变成了业主的一个休息区域礼 , 改造之后的小家功能齐全还有休闲阳台 , 小房子也可以过着优雅的生活 。
【玄关】
设计重点:全身镜和鞋柜一体
入户的玄关面积不是很大但却有着很强的储物功能 , 装修的时候特意定制了一个储物柜和全身镜一体的柜子 , 全身镜的后面也是储物柜 , 足可以满足业主一个人的生活需求了 , 侧面还为女主人准备了一个梳妆台 , 充分的利用了家里的空间来满足女主人的生活需求 。
【客厅】
设计重点:双人小沙发
客厅设计在了靠近窗边的位置 , 在窗边摆放了一个双人的小沙发和圆形的小茶几 , 地面铺上了一个圆形的小地毯了 , 平时业主在家的时候就可以直接窝在沙发这里休息和放松 , 加上柔软的毛毯感觉就很慵懒惬意 。
沙发靠近窗边的位置 , 采光也很好 , 封闭式的阳台加上一个推拉式的隔断门也可以更好地保护业主的安全 。
客厅设计了一个半隔断的墙壁作为电视背景墙 , 可以起到隔断的作用 , 也保证了小户型的采光和通风 。
【厨房】
设计重点:改造旧橱柜
业主的装修预算不是很多 , 所以在装修厨房的时候还是选择保持了之前的橱柜 , 只是用贴纸做了一些改造 , 让厨房重新焕发了新光彩 。
【阳台】
设计重点:休闲小阳台
阳台选择了防腐木的地板 , 放置上户外桌椅和绿植就构成了一个舒适的休闲角落 。
【卫生间】
设计重点:灰色墙砖
经验总结扩展阅读
- 洗面奶 敏感干皮补水用什么洗面奶好 平价的氨基酸补水洗面奶盘点
- 美容帮你有效抚平皱纹的必杀技
- 四大血型寿命排行榜,AB型平均年龄70岁,排第3,第1是哪个?
- 再回首 《再回首》发现平平淡淡才是真!
- 短发 别把抗衰老的护肤品想的这么贵,6款平价抗衰老精华,你买得起
- 什么“做完25万一平的美甲,我丑得睡不着”
- 面霜 销量Top10的平价修护面霜盘点!
- 经验教程电商详情页设计教程,平面设计素材,广告设计培训,美工设计培训
- 土豆 哪款平价遮瑕最好用?怎么挑选平价遮瑕?热门遮瑕液的真实测评 。
- 贺秀莲|《平凡的世界》“因吃两白馍挨少安打”的秀莲:请读懂,这个女人
