家居超人|独立的二层复式小楼,将室外花园纳入室内,动静分离的设计更实用

文章图片

文章图片

文章图片

文章图片

文章图片

文章图片

文章图片

今天和大家分享的是一个独立的二层复式小楼 , 这个房屋位于城郊附近周围的环境比较安静非常适合日常居住 , 同时周边的配套设施也比较齐全日常生活也很方便 , 装修的时候也照顾到了房屋主人的生活特点来装修设计 , 将室外的花园纳入到了室内 , 整个空间都是以简约舒适为主 , 装修的时候也照顾到了一家人的生活习惯 , 动静分离的设计更实用 。
独立的二层复式小楼 , 将室外花园纳入室内 , 动静分离的设计更实用
房屋户型:别墅
房屋面积:350平方米
装修预算:50万元以上
所在城市:贵阳
设计师:李一清
主要建材:茶镜、板岩、抛光石英砖、银波灰玻璃、黑云石、黑檀木、烤漆玻璃、仿凿面石头
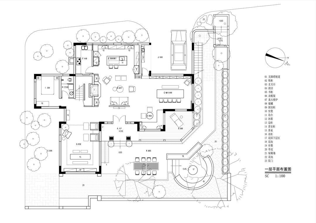
【户型图】
装修的时候将二楼的区域设计成了休息的区域会更加安静一些 , 而家里的活动区域则是设计在了一楼的区域 , 平时行动起来也会比较方便 , 不过装修的时候还在一楼设计了一个卧室 , 方便父母居住 , 另外一楼还准备了客房 , 方便家里的老人过来居住的时候居住 。
【客厅】
设计重点:将入户花园或设计引入室内
家里装修的时候特意选择了大面积的落地玻璃窗将室外的花园引入到室内 , 让家人坐在客厅就可以看到外面的风景 , 从而达到通透的效果 , 也增加了客厅的通风和光线 。
一楼的区域是家里的活动区域 , 装修的时候设计了厨房、餐厅、会客区域和茶室 , 让每一处空间都可以满足业主的日常生活需求 , 淡雅的颜色也不会过于浮夸 , 看起来更加的简单大方 , 让人感觉更加的舒适 。
客厅还添加了壁炉作为装饰 , 等到了天气冷的时候一家人也可以一起坐在壁炉旁边聊天和休息 , 装修壁炉的时候也重点关注了家里的管道问题 , 解决了空气的流通问题 , 让室内的空气更加通透 。
【厨房】
设计重点:中西厨结合
因为平时女主人也喜欢在家做一些甜点 , 所以装修的时候特意将中厨和西厨结合在了一起 , 方便业主的日常生活需求 。
另外西厨区域还设计了一个中岛台 , 侧面还放置了一些书籍 , 等待甜品的时候也可以坐在这里看书休息一会 。
【餐厅】
设计重点:双餐厅设计
家里设计了两个不同风格的餐厅 , 一个是比较小的餐厅 , 设计了卡座和藤椅 , 平时家里人比较少或者是喝下午茶的时候使用这个小餐厅也会方便一些 。
经验总结扩展阅读
- 一个人真正的独立,是从攒钱开始的
- 品牌民族彩妆ZFC品牌获超人气国创IP《两不疑》授权,即将推出联名款彩妆
- 组织架构 一拳超人重制版201话:刘海大婶心态崩了 速度被压制 惨败退场
- 超人气什么精华液值得买?超人气的精华液排行榜,爱美的你不如看看吧
- 想要活得好,先要有思想,女孩们应该如何独立思考?
- 信息爆炸、物欲横流 学会独立,这是生活的一部分
- 孩子|当彼此都能够独立,然后选择去依赖,这样的亲密关系也许更舒适
- 常言道:好看的皮囊千篇一律 女人一定要经济独立和思想独立
- 方法恒信家居中“塑料家具”
- 王尔德说:“在我年轻的时候 独立女性要不要把一切褶皱熨平?
