装修坊|43平小户型的翻身改造,看了业主的卧室设计,朋友都想要模仿

文章图片

文章图片

文章图片

文章图片

文章图片

文章图片

文章图片
今天的这个房屋户型只有43平 , 却要满足一家三口的生活需求 , 为了能够让业主一家人住得更加舒心 , 首先要做的就是增加家里的储物空间了 , 装修的时候设计师也是花费了很多心思 , 努力将43平的小户型打造成更加实用的家居空间 。 好在房屋的层高很高 , 可以分成两层来打造 , 也为家里的孩子构筑了一个秘密基地 。 而家里的储物空间则是重点放在了男女主人的卧室 , 看过业主的卧室设计之后 , 身边的朋友也是都想要模仿 。
43平小户型的翻身改造 , 看了业主的卧室设计 , 朋友都想要模仿
房屋户型:一室
房屋面积:43平方米
装修预算:20到30万元
所在城市:北京
设计师:何玉玉
主要建材:花旗松原木、文化石、珪藻土、白橡木皮、秋香木皮、烤漆玻璃、强化玻璃、壁纸、皮革绷布
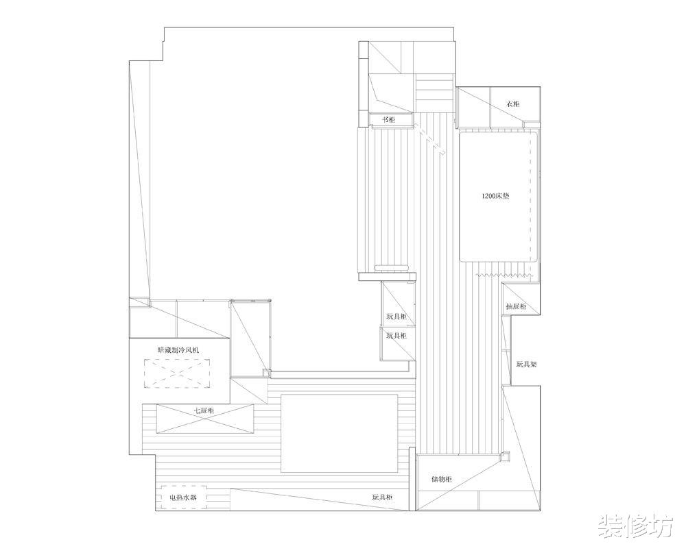
【户型图】
房屋的层高要比普通的房屋高出很多 , 这样就可以通过层高的分隔来打造一个小孩的房间 , 业主小的时候是在北方的农村生活 , 对家里的土炕更是印象深刻 , 虽然装修的时候我们不能还原土炕 , 但却可以用榻榻米来代替床铺 , 同时还可以利用榻榻米来储物 , 增加了家里的储物空间 。
【玄关】
设计重点:实木屏风作为隔断
入户的玄关处添加了一个白色和实木结合的鞋柜来满足日常的生活需求 , 另外在玄关和客厅之间设计了一个实木的屏风来作为隔断 , 合理划分两个区域 , 地面选择的地砖也是家里的一个亮点 , 充满设计感而且很耐脏 , 方便清理和打扫 。
【主卧】
设计重点:榻榻米床铺
主卧根据业主的喜好和需求选择了用榻榻米来代替传统的床铺 , 榻榻米和普通双人床占用的空间基本都是一样的 , 而且榻榻米的设计还可以增加更多的储物空间 , 来满足日常的储物需求 。
【装修坊|43平小户型的翻身改造,看了业主的卧室设计,朋友都想要模仿】
整个榻榻米的底部都可以用来储物 , 平时可以放置一些反季不经常使用的被子和衣物 , 完全不会影响到平时的使用 。 榻榻米侧面的柜子一部分可以当做衣柜放置衣物 , 另外开放的部分也可以当做书柜和展示柜 , 用来美化和装饰空间 。
榻榻米的中间还是一个可以升降的桌子 , 可以充当一个临时的餐桌和书桌 , 升降的设计也是方便了日常的起居生活 , 小空间也可以得到充分合理的利用 。
【厨餐区】
设计重点:餐厅和厨房相连
厨房和餐厅因为空间的限制只能放置在同一个区域里面 , 高吧台代替了家里的餐桌 , 厨房和餐厅中间还设计了一个纱帘可以阻挡做饭的油烟 。
经验总结扩展阅读
- 敏感肌 那些断货王护肤品太坑了,御泥坊、百雀羚均上榜,用完长痘还过敏
- 对于现在年轻人来说 新房装修,婆家为什么不给彩礼?
- 人体璟美让你别去路边的小作坊美容院全是为了你好!
- 万象城「兰蔻菁纯花颜悦坊」空降万象城!1V1奢宠护理舱,来就享千元贵妇级体验!
- 理想搞笑GIF趣图:二哈:这家装修不行呐,还得我来
- 杜新枝放空炮袖手旁观,熊磊无奈只能自己开店,新店装修即将开业
- 结婚 婚后才知房子在小叔子名下,妻子搬空家具砸烂装修:搬进去结婚吧
- 护肤品 装修墙面,乳胶漆、硅藻泥、彩妆漆和墙纸怎么选?都有哪些特点?
- 带着男子好心带哈士奇做造型,中途发现不对劲,二哈:我有个装修计划
- 这个姐夫最近刚刚把名下的一套学区房进行了装修 小舅子要我把名下的学区房给他,我该怎么办?
